Liệu có cần thiết phải lấy góc vuông trong xây dựng không? Cách kê vuông trong xây dựng, giác móng nhà tiêu chuẩn như thế nào?
Việc làm giác móng trong công trình được xem là hạng mục quan trọng, quyết định đến nền móng, hình dạng ban đầu của một công trình. Vậy làm thế nào để lấy giác móng, góc vuông một cách chuẩn xác nhất. Cùng theo dõi những thông tin này trong bài viết dưới đây.

Tấm lợp nhà kính trồng rau, trồng hoa giá rẻ tốt nhất 2022
1. Góc vuông, giác móng là gì?
Cách lấy góc vuông hay giác móng là định vị các góc của ngôi nhà bằng phương pháp thủ công hoặc kỹ thuật. Việc xác định các góc vuông rất quan trọng khi thiết kế nhà, nếu đúng kỹ thuật sẽ giúp nền móng của ngôi nhà chắc chắn, bền vững và không bị méo mó.
Chú ý: Khi giác móng nhà ta nên chọn góc vuông vắn nhất của ngôi nhà đối với khu đất không được đẹp để làm góc khởi đầu giác móng.
Các công việc cụ thể khi tiến hành giác móng nhà:
- Xác định tim nhà chân mái đất đắp
- Đỉnh mái
- Xác định mép hố móng hay đường viền móng
- Kiểm tra kỹ kích thước và các góc vuông
2. Hướng dẫn cách kê góc vuông, giác móng trong xây dựng
2.1. Cách kê góc vuông bằng phương pháp thủ công
Chuẩn bị
Khi tiến hành lấy góc vuông thủ công cần chuẩn bị những vật dụng sau:
- Cọc sắt có đầu sơn đỏ đoạn 50cm: 4 đoạn
- Thước mét: 1 cái
- Búa: 1 cái
- Dây dù hoặc cước: 1 cuộn
Giác móng nhà

Nên chọn tấm lợp lấy sáng mica hay tấm lợp poly tốt hơn?
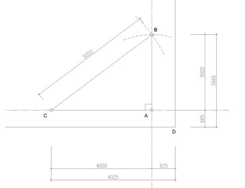
Theo ảnh minh họa, điểm D là góc ô đất xây dựng và góc này là vuông nhất. Giả sử, bạn muốn góc nhà của mình cách góc ô đất theo 2 phương x,y lần lượt là 925 và 665mm. Qua đó, ta có thể dễ dàng xác định được điểm A là góc nhà.
Từ điểm A, đóng 1 cọc sắt sơn đỏ. Dùng dây buộc và đầu cọc, quay 2 cung tròn: 1 cung 4m và 1 chung 3m .
Xác định điểm C bởi cung tròn 4m (AC = 4m) và cách mép tường rào 665mm
Đóng thêm 1 cọc sắt tại điểm C, buộc dây vào đầu cọc, quay 1 cung tròn bán kính 5m. Khi đó, giao điểm giữa cung tròn C bán kính 5m (C: 5m) và cung tròn A bán kính 3m (A: 3m) là điểm B.
Lúc này, đảm bảo AC = 4m, AB = 3m và BC = 5m. Theo định lí Pytago, ta đảm bảo chắc chắn rằng tam giác ABC vuông tại A.
Dựa theo hướng cạnh AB, AC ta lần lượt xác định được các trục của ngôi nhà.

Hướng dẫn cách tính dự toán xây dựng nhà ở chi tiết nhất 2022
Hoặc dựa theo hình minh họa trên, giả sử bạn chọn điểm D là góc ô đất xây dựng và góc nhà cách góc ô đất theo 2 phương x,y. Góc A xác định như hình vẽ:
Các thao tác thực hiện giác móng như sau:
- Tại điểm A, dùng búa đóng 1 cọc sắt đã chấm sơn màu đỏ. Tiếp đó, dùng cước buộc vào đầu cọc, quay 2 bán kính có kích thước lần lượt là 6m và 8m.
- Từ đó, chúng ta có thể xác định được điểm C là điểm thỏa mãn điều kiện và cạnh AC = 8m
- Tiếp tục dùng búa đóng thêm 1 cọc sắt đã chấm sơn màu đỏ tại điểm C. Buộc vào đầu cọc 1 sợi cước và quay 1 bán kính 10m.
- Vậy điểm giao giữa cung tròn tâm A và tâm C là điểm B. Đảm bảo 3 cạnh lần lượt là AB = 6m, AC = 8m và BC = 10m.
Áp dụng công thức toán học theo định luật Pytago suy ra BAC vuông góc. Như vậy, dựa vào cạnh AC, AB ta đo được khoảng cách chiều dài cạnh nhà, cũng như có thể xác định được các trục còn lại.
Xác định tim cột, tim móng
Sau khi đã xác định được các trục, bước tiếp theo là xác định móng và tim móng. Trước tiên bạn cần dùng vôi làm dụng cụ để vẽ kích thước đất vào móng. Tiếp đến là đào đất, thực hiện xong sẽ tiến hành thả dọi để xác định được tim móng.
Khi đã xác định tim móng sẽ đổ một lớp bê tông lót móng. Kiểm tra kỹ càng tim móng sau đó xác định tim cột. Khi xác định được tim cột, sẽ đặt thép cột trùng với nhau. Và đổ thêm một lớp bê tông móng thêm, tiếp tục thực hiện các công đoạn để hoàn thiện công trình.
Lưu ý: Vừa xác định được tim móng bạn nên kiểm tra cẩn thận và sau khi hoàn thành việc xác định trục, bạn cần kiểm tra tổng thể công trình bao gồm: Kích thước của 2 trục xác định trong bản vẽ và 2 đường chéo phải bằng nhau để đảm bảo chính xác ngôi nhà của bạn luôn vuông vắn.
2.2. Cách lấy góc vuông bằng máy
Hiện nay, công nghệ máy móc ra đời nhằm hỗ trợ con người, kể cả máy lấy góc vuông. Những công trình lớn cần có thợ chuyên làm trắc đạc và dùng máy toàn đạc điện tử thay vì thực hiện giác móng thủ công. Máy quang có sai số lớn, bẻ góc 90 công trình dài > 30m là sẽ sai số vài cm.

Các bước tiến hành như sau:
- Bước 1: Thiết kế, giám sát và chủ đầu tư sẽ tiến hành giao mặt bằng cho nhà thầu
- Bước 2: Từ mốc gốc truyền thêm một số mốc thứ cấp ra các vị trí thuận lợi cho đo đạc và bảo vệ mốc
- Bước 3: Dùng máy di chuyển các địa điểm định vị trục. Lưu ý, các điểm này phải cách trục 5 – 10m để không bị mất khi đào đất và vận chuyển tập kết vật tư.
- Bước 4: Khi đào đất chỉ nên giác móng sơ bộ bằng cách rải vôi vào máy đào. Sau khi đổ bê tông lót trước khi đặt thép
Khi sử dụng máy móc, bạn chỉ cần 1 người trung cấp đo vẽ địa hình thực hiện. Kỹ sư xây dựng sẽ dùng thủy bình để kiểm tra cốt.
3. Những lưu ý khi lấy góc vuông trong xây dựng
3.1. Định vị công trình dựa vào góc hướng và góc phương vị
Đối với các công trình đã biết mốc chuẩn A, góc hướng, góc phương vị và độ dài, việc định vị công trình sẽ được tiến hành theo các bước sau:

Mua tấm lợp nhựa trắng Polycarbonate giá rẻ ở đâu?
Đầu tiên, cần dùng địa bàn xác định hướng Bắc. Tiếp đến, đặt máy kinh vĩ tại điểm A và ngắm theo hướng Bắc quay một góc xác định. Dùng thước đo khoảng cách của m trên tia Ax, xác định được điểm B. Đặt máy B ngắm lạ A và quay một góc để xác định được BI.
Cuối dùng, dùng thước đo độ dài BE là một cạnh của công trình. Như vậy, chúng ta sẽ xác định được điểm B và cạnh công trình BE. Làm như vậy sẽ dễ dàng xác định được trục tim đường bao công trình trên khu đất xây dựng.
3.2. Gửi mốc và bảo quản mốc
Sau khi đã định vị xong công trình, căn cứ vào bản vẽ thiết kế xác định các đường tim ngang dọc của công trình. Tiến hành, kéo dài các đường tim về phía của công trình rồi làm mốc. Thông thường, mốc tim được làm bằng cọc sắt hoặc cọc bê tông cốt thép được đổ bê tông móng.
Việc định vị và giác móng công trình phải lập biên bản và phải được sự xác nhận của chủ đầu tư, cơ quan thiết kế và cán bộ chỉ huy thi công công trình. Các mốc này sẽ được bảo vệ suốt quá trình thi công.
Cách lấy góc vuông rất quan trọng, chỉ cần một chút sai sót nhỏ thì kiến trúc căn nhà sẽ bị lệch và thành hình khác. Vì vậy trong xây dựng, giác móng được xem là hạng mục được tất cả kiến trúc sư quan tâm và thực hiện một cách cẩn thận, tỉ mỉ nhất.
Hy vọng, những thông tin về cách lấy góc vuông hay còn gọi là giác móng trên đây sẽ giúp ích cho bạn trong việc thi công hoàn thiện, đảm bảo chất lượng hơn.
THÔNG TIN LIÊN HỆ
Showroom: 2961 Quốc Lộ 1A Phường Tân Thới Nhất, Quận 12, TPHCM
Kho hàng: Ngã tư Bà Điểm – Huyện Hóc Môn – TPHCM
Nhà máy: Hà Nội
Điện thoại: 096 757 7891 (Ms. Linh) – 0966 337 891 (Ms.Tư)
Email: linh.nguyen@minhphatpc.vn
Website: https://minhphatpc.vn
Xem thêm:
- Biện pháp thi công san nền bằng bơm cát phổ biến hiện nay
-
Top 3 loại tấm lợp mái nhà – Công dụng và đặc điểm

Hotline: 0966.337.891
Chat Zalo